
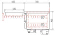
CORECO Mesa fría baja con cajones para cocina fondo 70 KBR


Tiempo de entrega
Recíbelo entre 3 y 4 semanas.
Tiempo de entrega
Recíbelo entre 3 y 4 semanas.
Mesa fría refrigerada de 60 cm de altura pensada para colocar debajo de la cocina eléctrica o de gas. Incorpora cajones refrigerados desmontables de acero inoxidable.
La mesa fría refrigerada CORECO KBR con un fondo de 70 cm está pensada para colocar debajo de una cocina de gas o eléctrica . Está fabricado tanto el exterior como el interior en acero inoxidable , e incorpora cajoneras refrigeradas extraíbles con sistema de cierre automático y guías telescópicas.
Es el bajomostrador ideal para las cocinas de restaurantes, bares y hoteles para colocar debajo de la cocina eléctrica o de gas y al mismo tiempo para conservar cualquier producto que necesite estar refrigerado.
Incorpora cajones extraíbles.
Es sistema de frío ventilado permite una temperatura uniforme en todo el interior.